中文
實驗室設計規劃是一項復雜系統工程,涉及專業眾多,要由專業技術人員專業設計,要全面綜合考慮,遵循以人為本的原則,建成正規化、標準化的實驗室達到最佳的使用效果。更需要同時精通實驗室使用知識和建筑知識作為技術基礎。無論是新建、擴建、或是改建項目,都不單純是選購合理的儀器設備與實驗家具。實驗室的總體規劃設計包括實驗室合理布局和平面設計,以及強弱電、給排水、供氣、通風、空調、空氣凈化、安全措施、環境保護等基礎設施和基本條件。

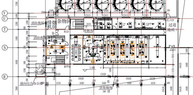
平面布局是配合工藝設計同時進行的,平面布局基于工藝設計,在滿足工藝要求的前提下,進行建筑學的功能、空間和藝術處理,但平面布局的確定,直接影響結構、水、暖、電、動力等相關專業的設計。


實驗室設計規劃包括:實驗室消防系統、給排水系統、配電系統、弱電系統、空調系統、通排風系統、供氣系統等,這些系統的設計以工藝專業和建筑專業為基礎,不僅要滿足工藝專業對功能的要求,還要滿足建筑專業的要求,而且也要滿足他們各個專業之間的協調運作。
版權所有 @ 山東德瑞克儀器股份有限公司 備案號:魯ICP備12028852號-4 實驗室一站式服務,實驗室設計,試驗儀選配.(魯)-非經營性-2021-0099